Apartment Paris 17e - 4 bedrooms - 139m²
75017 - Paris 17e
DESCRIPTION
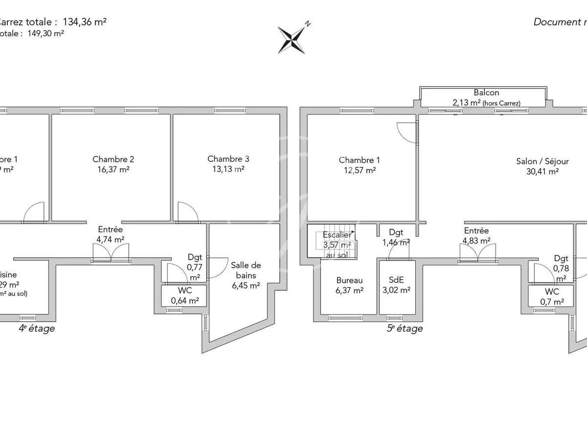
Boulevard Pereire, close to transport, amenities and prestigious private schools, in a beautiful 1884 Haussmann building, superb 134.36sqm Carrez duplex located on the fourth and fifth floors by elevator.
On the fifth floor, the apartment opens onto a welcoming entrance hall, a double reception room with high ceilings opening onto a balcony with unobstructed views, a master bedroom, a shower room, an office area, a kitchen and separate toilet.
On the lower floor, connected by an attractive staircase, the layout includes a large kitchen/diner, three pleasant bedrooms, each with its own fireplace, a bathroom/laundry room and separate toilet.
Both floors have retained their own entrances, preserving their independence.
You'll be seduced by the beautiful volumes, unobstructed views, fine renovations, abundant storage space and preserved old-world charm (parquet flooring, moldings, fireplaces).
Two cellars complete this offer.
Sectorization Carnot.
Additional parking available on a nearby street.
EXCLUSIVE.
- Stunning duplex in a 1884 Haussmannian building
- Outdoor spaces with balcony offering clear views
- Independent levels with two separate entrances
Apartment - Paris 17th - Monceau - 134.36 sqm - 4 bedrooms
Information on the risks to which this property is exposed is available on the Géorisques website :
Ref : 2758WAGBOU4CH - Date : 07/01/2026
FEATURES
DETAILS
ENERGY DIAGNOSIS
LOCATION
CONTACT US
INFORMATION REQUEST
Request more information from JUNOT WAGRAM PEREIRE.























