Apartment Paris 17e - 2 bedrooms - 71m²
75017 - Paris 17e
DESCRIPTION
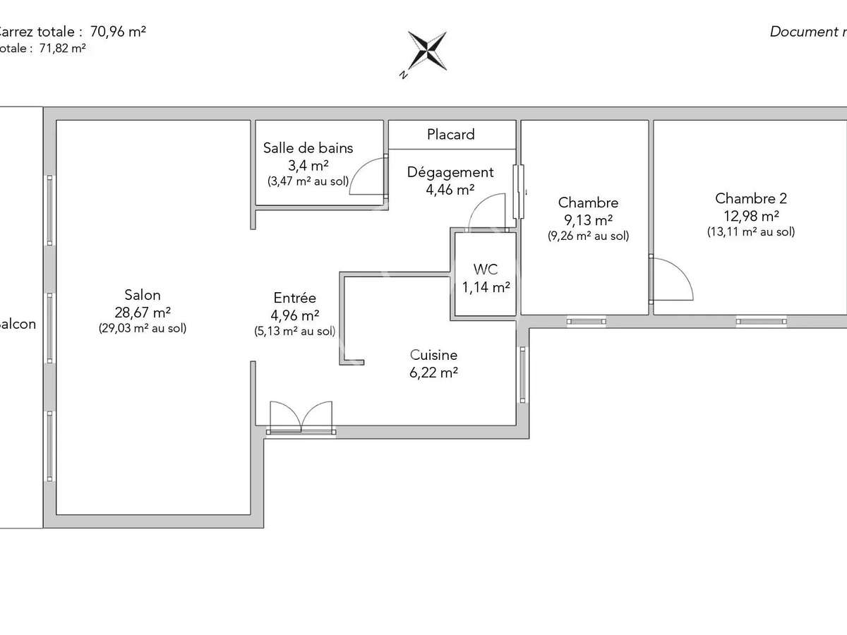
Rue Laugier, close to transport links and the Poncelet market, on the second floor by elevator of a beautiful Haussmann building, we offer you a charming 71sqm Carrez apartment.
With an optimized layout, this through-apartment, in good condition, opens onto an entrance hall, a double living room opening onto a balcony, a semi-open, fully-equipped kitchen, two bedrooms overlooking the courtyard, a shower room and separate toilet.
You'll love the optimized layout, abundant storage space and preserved old-world charm (parquet flooring, moldings, fireplaces).
A cellar completes this property.
Possibility of purchasing an additional parking space on Rue Poncelet -2.
EXCLUSIVITY.
Apartment - Paris 17th - Monceau - 70.96 sqm - 2 bedrooms
Information on the risks to which this property is exposed is available on the Géorisques website :
Ref : 2856WAGMBK - Date : 13/12/2025
FEATURES
DETAILS
ENERGY DIAGNOSIS
LOCATION
CONTACT US
INFORMATION REQUEST
Request more information from JUNOT WAGRAM PEREIRE.

















