Apartment Paris 16e - 1 bedroom - 91m²
75016 - Paris 16e
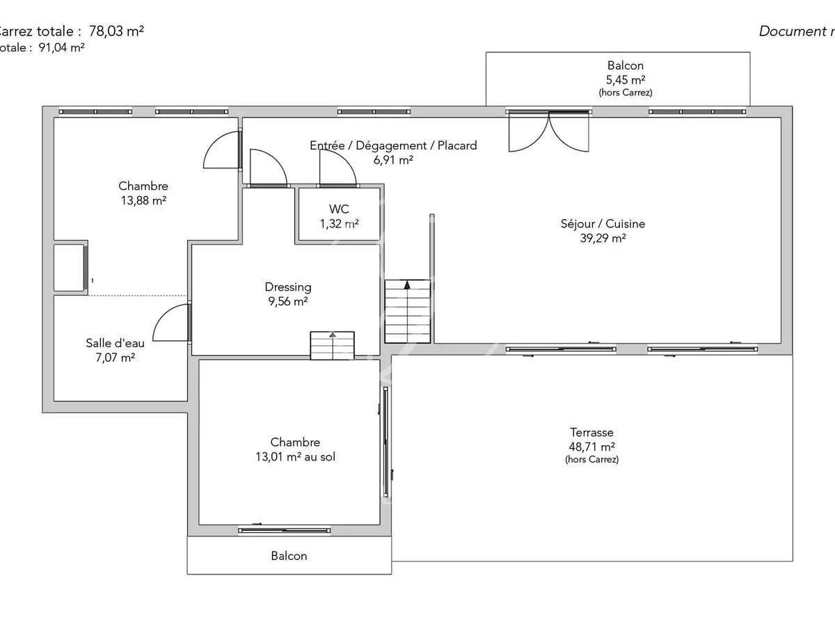
DESCRIPTION
In a quiet street close to Place Jean Monnet.
In a modern building, superb penthouse of 78.03sqm loi Carrez, 91.04sqm on the ground.
On the top floor by elevator, surrounded by a 48.71sqm terrace planted with trees and a balcony offering panoramic views of Paris and its monuments, this exceptional property has been beautifully renovated.
It comprises a vast, light-filled living room on the ground floor overlooking the terrace, a kitchen opening onto the living room, a master suite with a shower room, a second bedroom with direct access to the terrace, an office-dressing room and a separate toilet.
Quality fixtures and fittings, compact layout, absolute peace and quiet.
A cellar completes this offer.
- Bright penthouse with a 48.71 m² landscaped terrace
- Quality renovation for modern and elegant comfort
- Guaranteed tranquility in a desirable and lively area.
Apartment - Paris 16th - Victor Hugo, Passy, Auteuil - 78.03 sqm - 1 bedroom
Information on the risks to which this property is exposed is available on the Géorisques website :
Ref : 5419JUNDOR/ - Date : 06/01/2026
FEATURES
DETAILS
ENERGY DIAGNOSIS
LOCATION
CONTACT US
INFORMATION REQUEST
Request more information from JUNOT VICTOR HUGO.




























