Apartment Paris 16e - 1 bedroom - 63m²
75016 - Paris 16e
DESCRIPTION
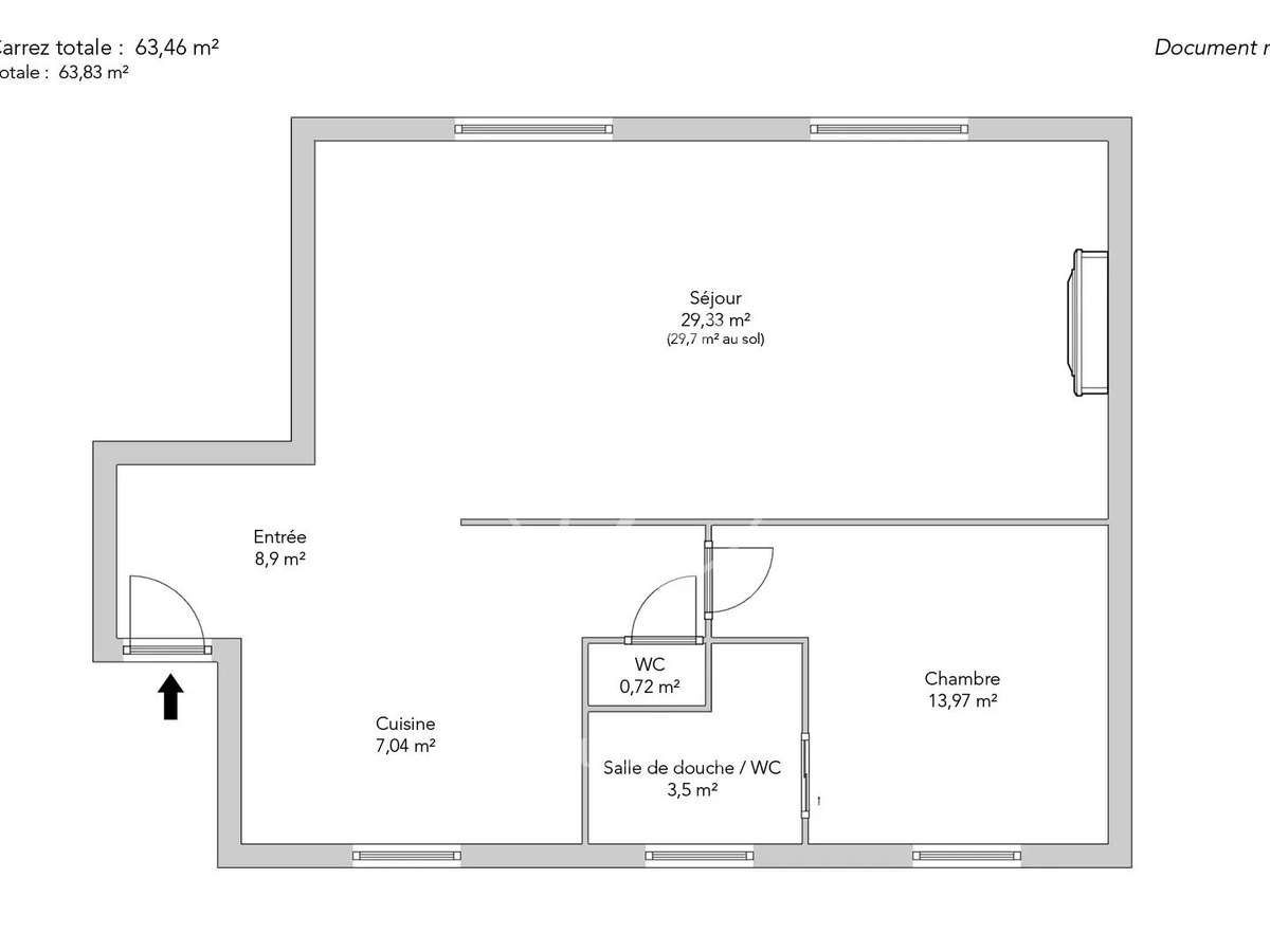
In a beautiful stone building, on the fourth floor with elevator, quiet apartment of 63.46sqm.
Bright and airy, it comprises an entrance hall, a beautiful double living room facing south-east (possibility of a second bedroom), a bedroom with shower room and toilet, an open-plan kitchen and separate toilet.
With parquet flooring, moldings and a fireplace, this Haussmann-style property benefits from plenty of natural light and is ready to move in.
Three cellars complete the offer.
- Haussmannian charm with hardwood floors, moldings, and fireplace.
- Bright due to its southeast exposure, pleasant atmosphere.
- Prime location in the Pergolèse neighborhood, near Foch.
Apartment - Paris 16th - Victor Hugo, Passy, Auteuil - 63.46 sqm - 1 bedroom
Information on the risks to which this property is exposed is available on the Géorisques website :
Ref : 2527TERPAR/ - Date : 06/01/2026
FEATURES
DETAILS
ENERGY DIAGNOSIS
LOCATION
CONTACT US
INFORMATION REQUEST
Request more information from JUNOT VICTOR HUGO.



















