Apartment Paris 14e - 1 bedroom - 37m²
75014 - Paris 14e
DESCRIPTION
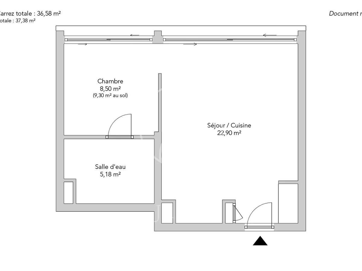
Close to transport and shops, discover this charming 36.58sqm loi Carrez apartment located on the sixth and top floor by elevator of a new, secure residence built in 2020.
Entirely tastefully decorated, it comprises a light-filled living room with an open, fully-equipped kitchen, a comfortable bedroom and a modern shower room with toilet.
The condominium offers a pleasant living environment thanks to its communal garden.
This property combines comfort, modernity and practicality, making it ideal for a first purchase or investment.
A cellar completes this offer.
- Prime location close to transport and shops.
- Bright apartment beautifully decorated throughout.
- Pleasant living environment with a secure communal garden.
Apartment - Paris 14th - Montparnasse - 36.58 sqm - 1 bedroom
Information on the risks to which this property is exposed is available on the Géorisques website :
Ref : 1889CHMSAR14 - Date : 28/11/2025
FEATURES
DETAILS
ENERGY DIAGNOSIS
LOCATION
CONTACT US
INFORMATION REQUEST
Request more information from JUNOT 6E.





















