Appartement Paris 9e - 1 chambre - 40m²
75009 - Paris 9e
DESCRIPTIF
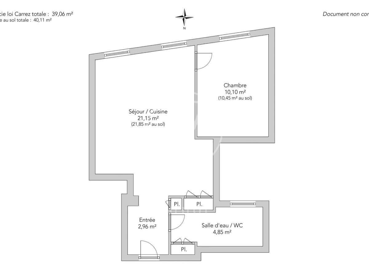
Rue Condorcet, au cœur du quartier Martyrs.Très beau deux pièces de 39,06m² loi Carrez entièrement rénové par un architecte.
Au premier étage d'un immeuble ancien, cet appartement sans défaut comprend une entrée desservant un séjour, une cuisine ouverte équipée,une chambre avec dressing intégré et une salle de douche avec toilettes.
Ce bien bénéficie d'une rénovation de grande qualité.
Une cave complète cette offre.EXCLUSIVITÉ.
- Rénovation de qualité réalisée par un architecte.
- Immeuble ancien avec charme parisien.
Paris 9e - RUE CONDORCET / MARTYRS - Appartement à
Les informations sur les risques auxquels ce bien est exposé sont disponibles sur le site Géorisques :
Réf : 3477STGMIC - Date : 16/01/2026
CARACTÉRISTIQUES
DIAGNOSTICS ENERGETIQUES
LOCALISATION
NOUS CONTACTER
DEMANDE D'INFORMATIONS
Demander plus d’informations à JUNOT SAINT GEORGES.














