Appartement Paris 17e - 3 chambres - 157m²
75017 - Paris 17e
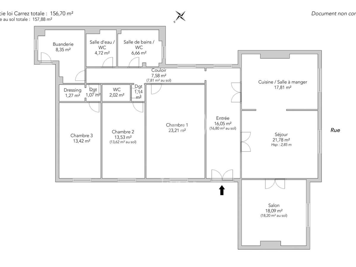
DESCRIPTIF
À quelques pas du parc Monceau, cet appartement familial bénéficie d’un environnement privilégié, à proximité immédiate des établissements scolaires réputés (sectorisation Carnot), des commerces et des transports.Situé au deuxième étage d’un élégant immeuble des années 1930, ce bel appartement de 156,70m² loi Carrez (157,88m² au sol) séduit par ses volumes généreux, sa distribution fluide et sa luminosité.
Dès l’entrée, une galerie accueille et mène à une vaste triple réception sur rue, composée d’un séjour, d’un salon bibliothèque et d’une cuisine ouverte avec espace salle à manger, offrant un cadre de vie convivial et raffiné.L’espace nuit distinct s’organise autour de trois chambres au calme sur cour (23m², 14m² et 13m²), accompagnées d’une salle de bains avec toilettes, d’une salle de douche avec toilettes, d’une troisième toilettes indépendantes, d’un dressing et d’une buanderie.
Les beaux volumes, la hauteur sous plafond (2.90m) et l’exposition sud-ouest confèrent à l’ensemble une atmosphère lumineuse et chaleureuse.
L’appartement est en très bon état général, doté de double vitrage et complété par une grande cave.Gardienne à demeure.Possibilité d’acquérir en sus un studio de 34m² sur le palier comprenant une salle de douche, une kitchenette et des toilettes.
- Emplacement privilégié à proximité du parc Monceau et des écoles.
- Vastes volumes lumineux et distribués de manière fluide.
PARIS 17e - COURCELLES / MONCEAU - Appartement à v
Les informations sur les risques auxquels ce bien est exposé sont disponibles sur le site Géorisques :
Réf : 2910TERZAM - Date : 17/01/2026
LES ATOUTS
CARACTÉRISTIQUES
DIAGNOSTICS ENERGETIQUES
LOCALISATION
NOUS CONTACTER
DEMANDE D'INFORMATIONS
Demander plus d’informations à JUNOT COURCELLES.
















